Verzetslaan 23

Putten /146 m2 /7 kamers
€ 795.000,- k.k.

Kenmerken

Algemeen

  • StatusBeschikbaar
  • Koopprijs€ 795.000,- k.k.
  • AanvaardingIn overleg

Bouwvorm

  • Soort objectWoonhuis
  • Soort woningEengezinswoning
  • Type woningVrijstaande woning
  • Bouwjaar1993
  • BouwvormBestaande bouw
  • LiggingenIn woonwijk

Indeling

  • Woonoppervlakte146 m2
  • Perceeloppervlakte578 m2
  • Inhoud516 m3
  • Aantal kamers7
  • Aantal slaapkamers6
  • Aantal badkamers1

Energie

  • EnergieklasseA
  • VerwarmingCV ketel, Vloerverwarming gedeeltelijk, Houtkachel
  • C.V.-KetelNefit
  • Bouwjaar C.V.-Ketel2016
  • WarmwaterCV ketel
  • IsolatieVolledig geïsoleerd
  • CombiketelJa
  • BrandstofGas
  • EigendomEigendom

Buitenruimte

  • TuinTuin rondom
  • HoofdtuinTuin rondom
  • AchteromJa
  • Kwaliteit tuinVerzorgd

Bergruimte

  • Schuur / BergingVrijstaand hout
  • Totaal aantal1

Parkeergelegenheid

  • Parkeer faciliteitenOpenbaar parkeren, Op eigen terrein
  • GarageVrijstaand steen, Garage met carport
  • Capaciteit1
  • Garages1

Dak

  • Soort dakZadeldak
  • Materiaal dakPannen

Overig

  • Permanente bewoningJa
  • Onderhoud binnenGoed
  • Onderhoud buitenGoed
  • Huidig gebruikWoonruimte
  • Huidige bestemmingWoonruimte
Omschrijving
Video

Royaal & compleet wonen met garage, carport en veranda

Bouwjaar: 1993
Kamers: 7
Inhoud: 516 m³
Woonoppervlakte: 146 m²
Perceeloppervlakte: 578 m²
Verwarming: c.v.-ketel, vloerverwarming woonkamer/keuken, houtkachel
Isolatie: volledig geïsoleerd

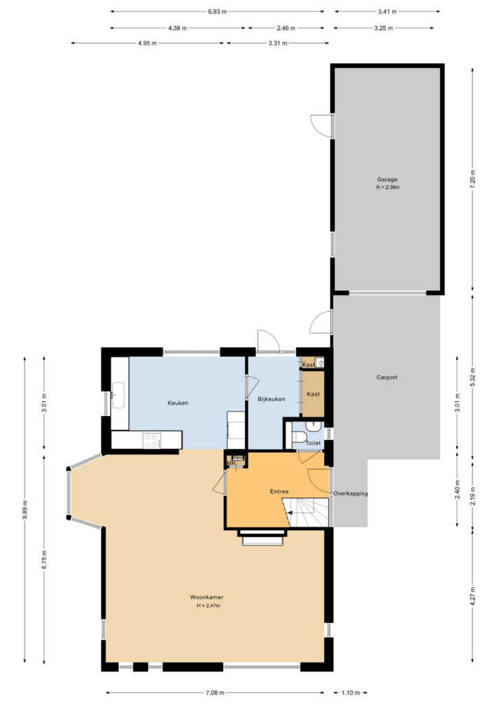
Deze in 1993 gebouwde woning is door de jaren heen goed onderhouden en biedt verrassend veel ruimte en comfort. De woning kenmerkt zich door de fijne, lichte leefvertrekken. De centrale hal met trappartij, vide en traplift geeft de woning een ruimtelijke en toegankelijke uitstraling. De royale woonkamer staat in open verbinding met de eetkeuken, wat zorgt voor een prettige en ruimtelijke sfeer. Aangrenzend bevindt zich een praktische bijkeuken. Dankzij de vloerverwarming is het hier het hele jaar door comfortabel wonen. Met maar liefst 6 slaapkamers, verdeeld over 2 woonlagen, is deze woning uitermate geschikt voor grote gezinnen, thuiswerkers of hobbyisten. De ruime badkamer is keurig uitgevoerd en van alle gemakken voorzien.

De riante, zonnige tuin op het zuidwesten is verzorgd aangelegd en geheel omheind. Verspreid over de tuin bevinden zich meerdere terrassen, zodat er altijd een fijne plek in de zon of schaduw te vinden is. Achterin de tuin bevindt zich een fantastische houten tuinhuis/veranda, volledig afsluitbaar middels glazen panelen en voorzien van een pelletkachel. Hierdoor is het hier het hele jaar door genieten. Grenzend aan de veranda bevindt zich een praktische berging.

De heerlijke lichte en ruime woonkamer met open keuken is voorzien van een natuurstenen vloer met vloerverwarming wat bijdraagt aan een comfortabel en stijlvol geheel. Dankzij de diversiteit aan royale raampartijen en de fraaie erker stroomt het daglicht van alle zijden naar binnen. Aan de voorzijde is een gezellig zitgedeelte gesitueerd bij de houtkachel met schouw en leuk uitzicht op de voortuin. In de erker is een charmante extra zitplek gecreëerd, een heerlijke plek om te ontspannen en te genieten. Daarnaast is er meer dan voldoende ruimte voor het plaatsen van een eethoek. De ruime, speelse vormgeving biedt de mogelijkheid voor verschillende woonopstellingen, ideaal om geheel naar eigen woonwens in te richten. De ruime keuken bevindt zich aan de achterzijde en heeft een prettige lichtinval dankzij de aanwezige raampartijen. Ook hier is voldoende ruimte voor het plaatsen van een eethoek, waardoor een sfeervolle woonkeuken is ontstaan met een prachtig uitzicht op de tuin. De keuken is uitgevoerd in een hoekopstelling, biedt volop bergruimte en is afgewerkt met een natuurstenen aanrechtblad. In het bijpassende wandmeubel zijn de combimagnetron en de koelkast stijlvol geïntegreerd. Daarnaast is de keuken uitgerust met diverse inbouwapparatuur, waaronder een inductiekookplaat, afzuigkap, vaatwasser en een Quooker. De aangrenzende praktische bijkeuken met achterentree is ingericht met aansluiting wasapparatuur, cv-installatie, vaste kasten en is volledig betegeld.

Vanuit de hal met toiletruimte is via de fraaie open trap met vide de 1e verdieping bereikbaar. Via de overloop zijn alle vertrekken toegankelijk. Hier bevinden zich 4 comfortabele, lichte slaapkamers, elk met een eigen formaat en karakter. Alle kamers zijn voorzien van een nette laminaatvloer, waarbij één van de slaapkamers beschikt over een praktische vaste schuifkastenwand. De badkamer is ruim van opzet, keurig afgewerkt en volledig betegeld in een tijdloze zwart-witte kleurstelling. De ruimte is compleet ingericht met een ligbad, separate douche, dubbel wastafelmeubel, een wandmeubel en een toilet. Tevens beschikt de badkamer over veel daglicht, wat zorgt voor een aangename en frisse sfeer. De fraaie open trap loopt door naar de zolderverdieping. Hier bevindt zich een centrale overloop met aan weerszijden toegang tot een slaapkamer. Daarnaast beschikt de overloop over praktische vaste bergruimte. Beide slaapkamers zijn voorzien van een Velux dakraam, wat zorgt voor een prettige lichtinval, en zijn afgewerkt met eenzelfde laminaatvloer, wat het geheel een rustige en uniforme uitstraling geeft.

De zonnige achtertuin is verzorgd aangelegd en kenmerkt zich door een speelse indeling met een open en groen karakter. De tuin is volledig omheind en rijk aan beplanting, wat zorgt voor een fijne balans tussen privacy en ruimtelijkheid. Verspreid over de tuin bevinden zich meerdere terrassen en diverse sfeervolle plekjes, waar het op elk moment van de dag heerlijk is genieten in zon of schaduw. Direct aan de achtergevel bevindt zich een terras met een elektrisch bedienbaar zonnescherm, een ideale plek om in de schaduw te ontspannen. Achter in de tuin staat een charmant houten tuinhuis/veranda. Deze is afsluitbaar middels glazen panelen en voorzien van een pelletkachel, zodat het hier in alle jaargetijden comfortabel is. Aangrenzend bevindt zich nog een praktische berging.

Via de ruime oprit aan de voorzijde is de carport bereikbaar, welke is voorzien van een lichtkoepel en direct aansluit op de garage. De garage beschikt over een elektrisch bedienbare garagedeur en een praktische loopdeur naar de achtertuin. Onder de carport bevindt zich tevens een poortdeur, die eveneens toegang biedt tot de achtertuin.

Kortom: een vrijstaande royale woning met garage en carport, gelegen in de kindvriendelijke woonwijk Husselerveld.

Soortgelijke prijsklasse

Kastanjelaan 17 in Putten, 3881 EL
Putten /101 m2 /5 kamers

Kastanjelaan 17

€ 795.000,- k.k.

Meer info
Prins Hendrikweg 33 in Putten, 3881 GA
Putten /123 m2 /5 kamers

Prins Hendrikweg 33

€ 765.000,- k.k.

Meer info
Larikshof 8 in Putten, 3881 DD
Putten /88 m2 /4 kamers

Larikshof 8

€ 595.000,- k.k.

Meer info