Abdinckhofstraat 22

Abdinckhofstraat 22

Putten /158 m2 /6 kamers
€ 729.000,- k.k.

Kenmerken

Algemeen

  • StatusVerkocht
  • Koopprijs€ 729.000,- k.k.
  • AanvaardingIn overleg

Bouwvorm

  • Soort objectWoonhuis
  • Soort woningEengezinswoning
  • Type woningTwee onder één kapwoning
  • Bouwjaar1969
  • BouwvormBestaande bouw
  • LiggingenAan rustige weg, In woonwijk

Indeling

  • Woonoppervlakte158 m2
  • Perceeloppervlakte370 m2
  • Inhoud573 m3
  • Aantal kamers6
  • Aantal slaapkamers5
  • Aantal badkamers1

Energie

  • EnergieklasseA
  • VerwarmingCV ketel, Vloerverwarming gedeeltelijk, Houtkachel
  • C.V.-KetelNefit
  • Bouwjaar C.V.-Ketel2019
  • WarmwaterCV ketel
  • IsolatieVolledig geïsoleerd
  • CombiketelJa
  • EigendomEigendom

Buitenruimte

  • TuinAchtertuin, Voortuin, Zijtuin
  • HoofdtuinAchtertuin
  • Oppervlakte98 m2
  • Ligging hoofdtuinOost
  • AchteromJa
  • Kwaliteit tuinFraai aangelegd

Bergruimte

  • Schuur / BergingVrijstaand steen
  • VoorzieningenVoorzien van verwarming, Voorzien van elektra, Voorzien van water
  • IsolatieDakisolatie, Muurisolatie, Dubbelglas
  • Totaal aantal1

Parkeergelegenheid

  • Parkeer faciliteitenOpenbaar parkeren, Op eigen terrein
  • GarageVrijstaand steen
  • Capaciteit1
  • Garages1

Dak

  • Soort dakSamengesteld dak
  • Materiaal dakPannen, Bitumineuze Dakbedekking
  • ToelichtingZadeldak + plat dak

Overig

  • Permanente bewoningJa
  • Onderhoud binnenGoed
  • Onderhoud buitenGoed
  • Huidig gebruikWoonruimte
  • Huidige bestemmingWoonruimte
Omschrijving
Video
Plattegronden

Royaal & comfortabel wonen

Bouwjaar: 1969
Kamers: 6
Inhoud: 573m³
Woonoppervlakte: 158m²
Perceeloppervlakte: 370 m²

Deze royale en verrassende half vrijstaande woning met gepotdekselde stenen garage en fraai multifunctioneel bijgebouw/atelier is gelegen in een rustige, geliefde woonwijk.
De van oorsprong in 1969 gebouwde woning is de afgelopen jaren met zorg uitgebouwd en stijlvol gerenoveerd.
Het resultaat is een moderne en comfortabele gezinswoning waarin ruimte, licht en hedendaags wooncomfort op harmonieuze wijze samenkomen.
De gezinswoning heeft een prettige indeling met royale en lichte leef-vertrekken.
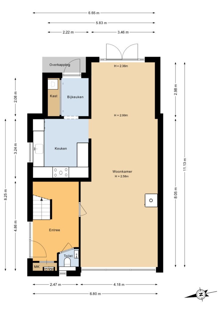
Via de royale hal met meterkast en toiletruimte is er toegang tot de riante gezellige leefruimte met open keuken en openslaande deuren.
Aansluitend bevindt zich de praktische bijkeuken met toegang tot de achtertuin.

Op de eerste verdieping bevinden zich een luxueuze badkamer en 3 ruime, lichte slaapkamers, waaronder een masterbedroom met balkon.
De zolderverdieping biedt nog 2 frisse, slaapkamers, beide voorzien van vaste bergruimte.
De fraai aangelegde, diepe zonnige achtertuin biedt volop ruimte en privacy. In de tuin staat een multifunctioneel bijgebouw/atelier voorzien van keukenblok, gashaard, openslaande deuren en een lichtkoepel, een fijne plek om te ontspannen of te werken.
Om het geheel compleet te maken zijn er ook nog een vrijstaande stenen garage en een eigen oprit met parkeergelegenheid.
De riante leefruimte kenmerkt zich door de prettige lichtinval en de fraaie plavuizenvloer met vloerverwarming. Tevens is er een aansluiting voor een houtkachel aanwezig. In 2016 is de woning aan de achterzijde stijlvol verbouwd waardoor er een heerlijke verlenging van de leefruimte voorzien van openslaande deuren en op maat gemaakte kastenwand is gerealiseerd. Ook is destijds de praktische bijkeuken met achterentree aangebouwd.
De open keuken in U-opstelling zorgt voor een gezellige verbinding met de leefruimte. De moderne landelijke keuken is van alle gemakken voorzien en beschikt over een groot fornuis van het merk Lofra met zes pitten inclusief 2 ovens. Daarnaast is de keuken uitgerust met diverse inbouwapparatuur.
De aangrenzende praktische bijkeuken met achterentree is voorzien van o.a. aansluiting wasapparatuur netjes weggewerkt achter een schuifkastenwand.

Op de 1e verdieping bevinden zich
3 royale slaapkamers met veel lichtinval. Aan de voorzijde van de woning is de lichte, frisse master- bedroom met balkon gesitueerd.
Ook de badkamer is aan de voorzijde gelegen. De keurige, complete badkamer is modern uitgevoerd en voorzien van een ruime inloopdouche, een ligbad met jets, een wastafelmeubel met spiegelkastje, een toilet en een designradiator.
Aan de achterzijde van de woning bevinden zich nog eens 2 ruime slaapkamers.
Beide kamers zijn voorzien van praktische inbouwkasten.
Dankzij de lichte kleurstelling en het vele daglicht hebben ook deze kamers een aangename frisse uitstraling.
Via een vaste trap is de keurig afgewerkte en ruime zolderverdieping bereikbaar. In 2019 zijn hier 2 slaapkamers en een voorzolder met bergruimte gerealiseerd.
Dit alles uitgevoerd in dezelfde stijlvolle afwerking als de rest van de woning.
Beide slaapkamers hebben een goed formaat, waarvan 1 tevens is voorzien van een dakkapel en de andere over een groot Velux dakraam beschikt.

De keurig aangelegde en verzorgde achtertuin is geheel omheind en biedt veel privacy.
De tuin is afwisselend en fraai ingericht met een royale plantenborder, gazon en verschillende terrassen.
Direct aan de achtergevel bevindt zich een beschut zonneterras. Via een sfeervol grindpaadje is het 2e terras bereikbaar, gelegen achter op het perceel bij het vrijstaande stenen bijgebouw/atelier.
Het multifunctionele bijgebouw/atelier is voorzien van openslaande deuren, een keukenblok, gashaard en lichtkoepel, waardoor een lichte en aangename ruimte is ontstaan.
Het comfortabele bijgebouw vormt een waardevolle aanvulling op de woning en is geschikt voor diverse doeleinden zoals werkruimte aan huis, hobbyruimte of een plek om gasten te ontvangen.
Vanuit de achtertuin is via een loopdeur de charmant gepotdekselde en met een nieuw dak verhoogde garage bereikbaar.
De garage is aan de voorzijde voorzien zien van openslaande deuren.
Verder beschikt de garage over elektra en 2 ramen.
Via de poortdeur tussen de garage en de woning is de royale oprit toegankelijk. Hier is voldoende ruimte om te parkeren op eigen terrein.

Soortgelijke prijsklasse

Nieuw in ons aanbod
Kelderskamp 3 in Putten, 3882 WL
Putten /150 m2 /6 kamers

Kelderskamp 3

€ 780.000,- k.k.

Meer info
Prins Hendrikweg 33 in Putten, 3881 GA
Putten /123 m2 /5 kamers

Prins Hendrikweg 33

€ 765.000,- k.k.

Meer info
Lariksstraat 15 in Putten, 3881 EK
Putten /83 m2 /5 kamers

Lariksstraat 15

€ 579.000,- k.k.

Meer info