Conny Heijmansstraat 3

Conny Heijmansstraat 3

Putten /122 m2 /5 kamers
€ 517.000,- k.k.

Kenmerken

Algemeen

  • StatusBeschikbaar
  • Koopprijs€ 517.000,- k.k.
  • AanvaardingIn overleg

Bouwvorm

  • Soort objectWoonhuis
  • Soort woningEengezinswoning
  • Type woningTussenwoning
  • Bouwjaar2022
  • BouwvormBestaande bouw
  • LiggingenIn woonwijk

Indeling

  • Woonoppervlakte122 m2
  • Perceeloppervlakte126 m2
  • Inhoud439 m3
  • Aantal kamers5
  • Aantal slaapkamers3
  • Aantal badkamers1

Energie

  • EnergieklasseA+++
  • VerwarmingVloerverwarming geheel, Warmte terugwininstallatie
  • IsolatieVolledig geïsoleerd
  • CombiketelNee

Buitenruimte

  • TuinAchtertuin, Voortuin
  • HoofdtuinAchtertuin
  • Oppervlakte50 m2
  • Ligging hoofdtuinWest
  • AchteromJa
  • Kwaliteit tuinVerzorgd

Bergruimte

  • Schuur / BergingVrijstaand hout
  • VoorzieningenVoorzien van elektra
  • IsolatieGeen isolatie
  • Totaal aantal1

Parkeergelegenheid

  • Parkeer faciliteitenOpenbaar parkeren
  • GarageGeen garage

Dak

  • Soort dakZadeldak
  • Materiaal dakPannen

Overig

  • Permanente bewoningJa
  • Onderhoud binnenGoed tot uitstekend
  • Onderhoud buitenGoed tot uitstekend
  • Huidig gebruikWoonruimte
  • Huidige bestemmingWoonruimte
Omschrijving
Video
Plattegronden

Duurzaam & comfortabel wonen!

Kamers: 5
Inhoud: 439 m³
Woonoppervlakte: 94 m² (waarbij de tweede verdieping momenteel nog 29 vierkante meter overig inpandige ruimte bedraagt)
Perceeloppervlakte: 126 m²
Verwarming: vloerverwarming met koelfunctie
Isolatie: volledig geïsoleerd
Zonnepanelen: 4 stuks (2022)

Moderne, instapklare tussenwoning met luxueuze overkapping en houten berging, gelegen in de jonge en zeer geliefde woonwijk ‘Rimpeler’.
De wijk kenmerkt zich door een frisse, moderne uitstraling en fijne kindvriendelijke woonsfeer met veel aandacht voor groen en leefruimte.
Wat deze locatie extra aantrekkelijk maakt is de goede bereikbaarheid van alle dagelijkse voorzieningen.
Het station, winkels en scholen bevinden zich op korte afstand, evenals de prachtige natuurgebieden.
Deze in 2022 gebouwde woning is volledig gasloos en met oog voor duurzaamheid gerealiseerd. De gehele woning is voorzien van vloerverwarming met koelfunctie, wat zorgt voor een comfortabel binnenklimaat.

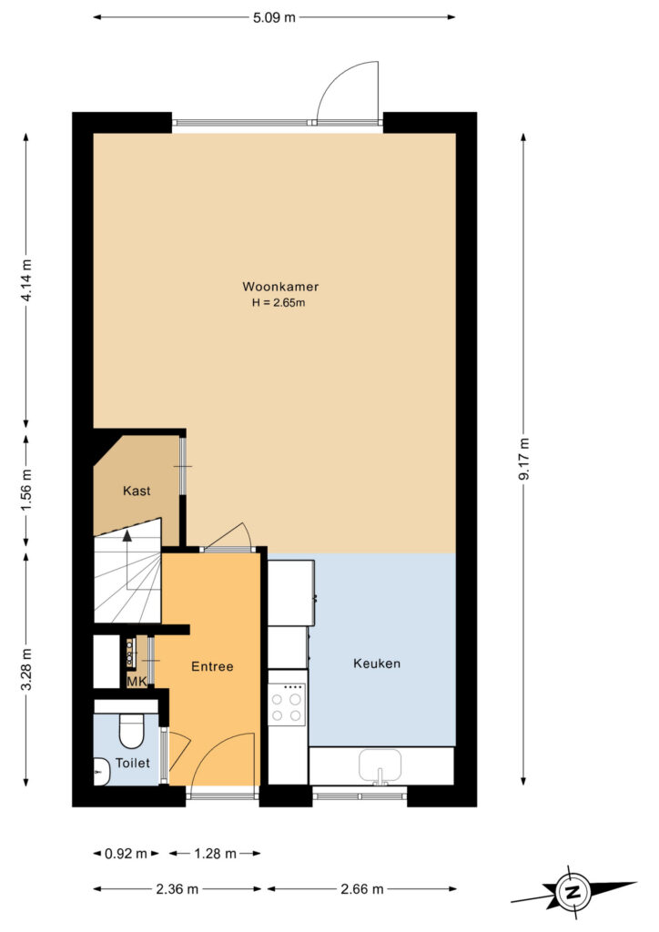
Via de entree/hal met toiletruimte en trapopgang is de sfeervolle woonkamer met open keuken bereikbaar.
De moderne keuken bevindt zich aan de voorzijde en is van alle gemakken voorzien. Op de 1e verdieping bevinden zich 3 volwaardige slaapkamers en een eigentijdse badkamer. Via een vaste trap is de zolderverdieping bereikbaar. Hier zijn de aansluiting voor wasapparatuur en de technische installaties geplaatst. Een mooie open ruimte met diverse mogelijkheden. De achtertuin is keurig aangelegd met grenzend aan de woning een fraaie overkapping. Een fijne plek om comfortabel te genieten. Achter in de tuin staat een houten berging, ideaal voor bijv. de fietsen.

De woonkamer met open keuken heeft een sfeervolle, eigentijdse uitstraling en is afgewerkt met een fraaie pvc-vloer met vloerverwarming. Tevens beschikt de woonkamer over een praktische trapkast. Het zitgedeelte is aan de achterzijde gesitueerd en volledig tuingericht. Het grote raam en de toegangsdeur naar de tuin zorgen hier voor een fijne lichtinval en een prettige verbinding met buiten. De keuken is aan de voorzijde gelegen en kenmerkt zich door een moderne en luxe uitstraling. De keuken is ingericht met diverse gerenommeerde inbouwapparatuur, te weten een inductiekookplaat, afzuigkap, magnetron, oven, koel-/vriescombinatie, vaatwasser en een quooker. Daarnaast biedt de keuken volop bergruimte. De spoelbak is onder het raam geplaatst en het geheel is stijlvol afgewerkt met een aanrechtblad in natuurstenen look.

Op de 1e verdieping bevinden zich 3 fijne slaapkamers, elk met een eigen formaat en stijlvolle uitstraling. Alle kamers profiteren van een prettige lichtinval en zijn voorzien van dezelfde PVC-vloer met comfortabele vloerverwarming, wat tegelijkertijd zorgt voor een rust en eenheid. De master bedroom beschikt bovendien over een royale kastenwand. De eigentijdse badkamer heeft een moderne, industriële uitstraling en is stijlvol betegeld tot aan het plafond. De ruimte is ingericht met een inloop-douche voorzien van hoofd- en handdouche en een stalen douchewand. Daarnaast beschikt de badkamer over een houten wastafelmeubel met
2 waskommen, een toilet, design-radiator en comfortabele vloerverwarming.

De achtertuin is op het westen gelegen en is stijlvol en verzorgd aangelegd. De tuin is onderhoudsvriendelijk en volledig omheind, met een praktische achterom. Over de gehele breedte van de woning bevindt zich een fraaie overkapping met glaspanelen en een geïntegreerd zonnescherm. Ieder paneel is afzonderlijk elektrisch bedienbaar, wat zorgt voor optimaal comfort en flexibiliteit.

Het royale terras onder de overkapping is een heerlijk plek om in alle comfort te genieten met familie en vrienden.
Verder is de tuin ingericht met een verhoogde plantenbak, leilindes en kunstgras.
Achterin de tuin staat een houten berging, ideaal voor het stallen van fietsen.

Soortgelijke prijsklasse

Nieuw in ons aanbod
Wallenbergstraat 37 in Putten, 3882 HA
Putten /121 m2 /5 kamers

Wallenbergstraat 37

€ 549.000,- k.k.

Meer info
Achterstraat 2B in Putten, 3882 AG
Putten /105 m2 /5 kamers

Achterstraat 2B

€ 475.000,- k.k.

Meer info
Vervoornstraat 134 in Putten, 3882 XS
Putten /97 m2 /5 kamers

Vervoornstraat 134

€ 449.000,- k.k.

Meer info