Strokelweg 2

Strokelweg 2

Harderwijk /358 m2 /9 kamers
€ 1.950.000,- k.k.

Kenmerken

Algemeen

  • StatusBeschikbaar
  • Koopprijs€ 1.950.000,- k.k.
  • AanvaardingIn overleg

Bouwvorm

  • Soort objectWoonhuis
  • Soort woningLandhuis
  • Type woningVrijstaande woning
  • Bouwjaar1977
  • BouwvormBestaande bouw
  • LiggingenBeschutte ligging, Buiten bebouwde kom, In bosrijke omgeving

Indeling

  • Woonoppervlakte358 m2
  • Perceeloppervlakte6.020 m2
  • Inhoud1.395 m3
  • Aantal kamers9
  • Aantal slaapkamers6
  • Aantal badkamers3

Energie

  • EnergieklasseC
  • VerwarmingCV ketel, Open haard, Vloerverwarming gedeeltelijk, Warmtepomp, Houtkachel
  • C.V.-KetelIntergas 36-30
  • Bouwjaar C.V.-Ketel2024
  • WarmwaterCV ketel, Elektrische boiler eigendom
  • IsolatieDakisolatie, Muurisolatie, Vloerisolatie, Dubbelglas, Volledig geïsoleerd
  • CombiketelJa
  • BrandstofGas
  • EigendomEigendom

Buitenruimte

  • TuinTuin rondom
  • HoofdtuinTuin rondom
  • AchteromJa
  • Kwaliteit tuinFraai aangelegd

Bergruimte

  • Schuur / BergingVrijstaand hout
  • VoorzieningenVoorzien van elektra
  • IsolatieGeen isolatie
  • Totaal aantal1

Parkeergelegenheid

  • Parkeer faciliteitenOpenbaar parkeren, Op eigen terrein
  • GarageCarport

Dak

  • Soort dakZadeldak
  • Materiaal dakPannen

Overig

  • Permanente bewoningJa
  • Onderhoud binnenGoed
  • Onderhoud buitenGoed
  • Huidig gebruikWoonruimte
  • Huidige bestemmingWoonruimte
Omschrijving
Video
Plattegronden

Buitengewoon wonen

Bouwjaar: 1977, verbouwjaar 2005 en in 2016 mantelzorgwoning gerealiseerd in aangrenzende voormalige garage
Inhoud: 1395 m³
Woonoppervlakte: 358 m²
Perceeloppervlakte: 6020 m²

Verscholen in het groen, grenzend aan uitgestrekte bossen en op een adembenemend perceel van maar liefst 6.020 m² staat dit unieke landhuis.
Een plek waar ruimte, natuur en comfort samenkomen, op steenworp afstand van het bruisende centrum van Harderwijk, heide en uitvalswegen.
Het fantastische familiehuis met aangrenzende mantelzorgwoning biedt een zee aan ruimte, zowel binnen als buiten.
Direct bij binnenkomst maakt dit heerlijke familiehuis indruk, een imposante, lichte hal met een elegante bordestrap en prachtige vide zet de toon.
Grote glaspartijen zorgen overal voor een overvloed aan daglicht en een naadloze verbinding met de omliggende natuur.
Het landhuis beschikt verder over een royale, lichte leefruimte met diverse openslaande deuren naar het terras en een sfeervolle openhaard, gezellige keuken en een kantoor.
Op de 1e verdieping zijn 2 badkamers en 5 slaapkamers, waarvan 3 met toegang tot balkon aanwezig.
De zelfstandige mantelzorgwoning is voorzien van een woonkamer, leefkeuken met openslaande deuren naar veranda, slaapkamer en een badkamer. Perfect voor zorg, gasten of praktijk-/ kantoorruimte aan huis.
Buiten is minstens zo indrukwekkend: de zonnige terrassen, diverse zitjes, een verfrissend zwembad, een tuinhuis en een berging met overkapping maken het buitenleven compleet.
Een buitengewone plek om eindeloos te genieten.

De sfeervolle leefruimte is voorzien van meerdere openslaande deuren naar het terras, een gezellige open haard, diverse raampartijen en een fenomenaal uitzicht op het groene buitenleven.
Er is volop ruimte voor meerdere zitplekken en een grote eettafel, de ideale ruimte voor gezellige familiemomenten, culinaire avonden of gewoon heerlijk rustig een boekje lezen bij de open haard. Hier kan het allemaal!
De ruime keuken past perfect bij de stijl van de woning: warm, uitnodigend en functioneel.
Uitgerust met o.a. een groot fornuis inclusief wokbrander, koel-/vriescombinatie, combimagnetron en ruim voldoende opbergruimte.
De landelijke keuken is afgewerkt met een stoer betonnen aanrechtblad en een porseleinen dubbele spoelbak.
Vanuit de keuken is tevens de mantelzorgwoning binnendoor bereikbaar.

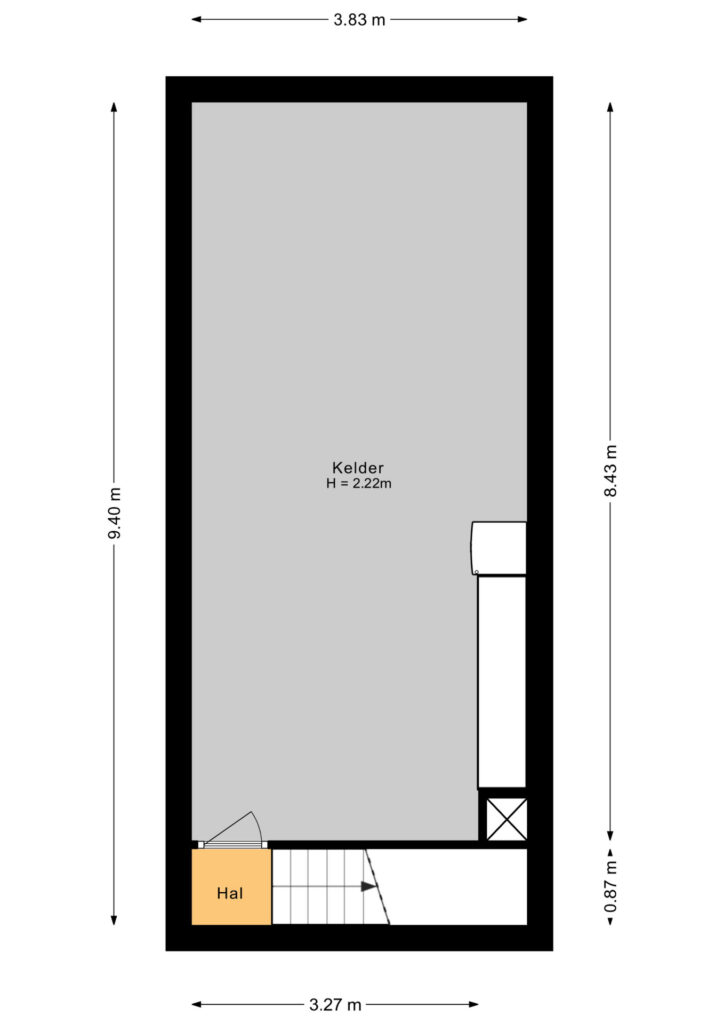
Via de imposante hal met toiletruimte en toegang tot kelder is tevens het aan de voorzijde gelegen kantoor te bereiken.
Een heerlijke ruimte om in alle rust te werken of te studeren.
Ook zijn via de hal de leefruimte, keuken en de 1e verdieping bereikbaar.

Op de 1e verdieping zijn 5 slaapkamers, allen voorzien van vaste kastruimte, een prachtige visgraat parketvloer en ieder met een eigen karakter.
Drie slaapkamers hebben middels openslaande deuren toegang tot het riante balkon met subliem uitzicht op de fraaie tuin.
Vanaf de overloop is de gemeenschappelijk badkamer voorzien van inloopdouche, toilet, wastafel, designradiator en aansluiting wasapparatuur bereikbaar.
De charmante master bedroom met toegang tot het balkon heeft een sfeervolle speelse indeling en beschikt over een eigen badkamer.
De keurige, complete badkamer heeft een frisse uitstraling en is ingedeeld met een ligbad, inloopdouche, toilet en een wastafel.

De tuin rondom het landhuis ademt rust, vrijheid en natuurlijke schoonheid.
Dankzij het open karakter te midden van hoge bomen en weelderig groen ervaar je hier het ultieme buitengevoel met volop privacy.
Het gazon vormt een prachtig middelpunt omringd door zitplekjes in zon- en schaduw.
Op de diverse overdekte terrassen is het heerlijk beschut genieten tot in de late uurtjes. Elk seizoen brengt hier zijn eigen kleur en charme.
Een houten hekje markeert de overgang naar het zwembadgedeelte, waardoor deze plek een eigen besloten sfeer heeft. Perfect om te ontspannen, zwemmen of loungen in alle rust.

Via een lommerrijke oprit is het riante perceel toegankelijk.
Op het perceel bevindt zich een royale praktische berging met overkapping/carport. Hier kunnen verschillende voertuigen droog worden geparkeerd.
Daarnaast is er op het terrein op diverse plekken voldoende ruimte om te parkeren.

Wat het extra bijzonder maakt, is het verrassende stukje eigen weiland. Bereikbaar via een paadje naast de berging met carport.
Ideaal voor bijvoorbeeld het houden van kleinvee, een moestuin, speelruimte voor de kinderen of gewoon als groene oase te betrekken bij de tuin.

Mantelzorgwoning:

De in 2016, in de voormalige garage gerealiseerde charmante, gasloze mantelzorgwoning combineert zelfstandigheid, comfort en veelzijdigheid op een unieke manier.
Perfect gepositioneerd op het perceel met zowel een binnendoorverbinding als een eigen opgang buitenom, waardoor er volop vrijheid en onafhankelijkheid is gecreëerd.
Dit alles bij elkaar maakt de woning ook uitermate geschikt als gastenverblijf, praktijk-/kantoor aan huis of atelier.
Bij binnenkomst in de woonkamer valt direct de speelse vormgeving en gezellige sfeer op. De ruimte is licht en open dankzij de openslaande deuren aan beide zijde, Velux dakramen en solartubes.
De cumulatie houtkachel zorgt voor een behaaglijk binnenklimaat.

Aansluitend bevindt zich de heerlijke lichte leefkeuken met openslaande deuren naar veranda en toegangsdeur naar overkapping aan de andere zijde.
De keuken heeft een moderne inrichting met diverse luxe inbouwapparatuur en geeft toegang tot de slaapkamer, beide zijn afgestyled met eenzelfde pvc vloer met vloerverwarming.
De prettige, lichte slaapkamer is ruim van opzet en beschikt over een luik naar de bergvliering.
De moderne badkamer is direct toegankelijk vanuit de slaapkamer en is uitgerust met een inloopdouche, toilet, wastafel, designradiator en vloerverwarming.
Ook hier is het genieten van de prachtige tuin met eigen fijne zitplekjes, overdekte terrassen, houten tuinhuisje en van het fenomenale uitzicht.

Soortgelijke prijsklasse

Chansondreef 35 in Harderwijk, 3845 GE
Harderwijk /124 m2 /5 kamers

Chansondreef 35

€ 539.000,- k.k.

Meer info